LQZ高承載全封閉球型支座是一種新型支座,因其承載能力高、轉角大、轉動靈活、轉動力矩與轉角無關等優點,可廣泛應用于各種跨度、各種類型的橋梁,特別適用于大跨度橋梁及寬橋、曲線橋、坡道橋等構造復雜的橋梁。
LQZ球型支座工作原理和構造
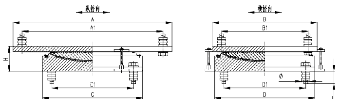
球型支座由下座板、球面四氟板、密封裙、中間座板、平面四氟板、上滑板和上座板組成。
球型支座的水平位移是由上(支座)滑板與中座板上的平面四氟板之間的滑動來實現的。另外,通過在上座板上設置導向板(槽)或導向環來約束支座的單向或多向位移,可以制成單向活動球型支座和固定球型支座。
球型支座的轉角是由中座板的凸球面與下座板上的球面四氟板之間的滑動來實現的。通常由于支座的轉動中心與上部結構的轉動中心不復合,而在中座板和下座板之間形成第二滑動面。根據上部結構與支座轉動中心的相對位置,球面轉動方向可以與平滑動方向一致或相反。如果兩個轉動中心復合,則無平面滑動。
LQZ球型支座的特點
LQZ球型支座險具有一般球型轉角大、轉動靈活、轉動力矩與轉角無關、轉動性能各個方向一致等優點外,還有以下幾大特點:
1、承載噸位大-最大支反力可超過100000KN;
2、轉角大(最大轉角0.06)
3、耐腐蝕能力大大增強,可在海洋大氣及飛濺區等惡劣環境下使用。
4、平面滑動和轉動磨擦阻力小。
5、防塵防水性能好,可保證磨擦副無腐蝕無污染。
6、設計壽命長(按100年設計)
7、支座小巧輕便,較同樣支反力的盆式橡膠支座重量減輕40-50%,較同樣支反力的其它球座重量減輕20~25%。
LQZ球型支座的技術性能
1、支座豎向承載力分 34 級:1000、1500、2000、2500、3000、3500、4000、4500、5000、5500、6000、7000、8000、9000、10000、12500、15000、17500、20000、22500、25000、27500、30000、32500、35000、37500、40000、45000、50000、60000、70000、80000、90000、100000kN;也可根據用戶要求進行特殊規格的設計、制造。
2、設計轉角:0.02rad。
3、支座可承受的水平力:GD 固定支座各向、DX 單向活動支座的限位方向向,為支座設計豎向承載力的 10%。多向活動(DX)支座各向、DX 單向活動支座活動方向的設計水平力為支座豎向設計承載力的 5%。
4、支座設計位移:SX 雙向活動支座和 DX 單向活動支座的順結構方向的主位移量設計位移為±100mm 和±150mm,SX 雙向活動支座的橫向位移量為±40mm,DX 單向活動支座橫向位移限值為±3mm。當所需位移量不同時,可進行特殊設計;
5、活動支座設計摩擦系數:常溫(-25℃~60℃)低溫(-40℃~-25℃)μ≤0.03 μ≤0.05
6、溫度適用范圍:-40℃~+60℃
7、支座使用環境:支座根據使用環境可分為普通型(適用于一般大氣環境)和耐蝕型(適用于海洋大氣環境及重度污染大氣環境),耐蝕型支座需在型號 LQZ 后加注(NS)以做標識。
8、對于有坡度要求的梁體,預制梁橋采用在支座上座板頂面設置楔形板的方式以適應梁體的坡度要求;現澆梁橋的坡度由梁底混凝土調整,支座本體不設坡度。
LQZ球型支座代號

例:支座型號 LQZ-5000DX-100
本例表示設計豎向承載力為 5000kN,水平力為豎向承載力的 10%,順橋向設計位移為±100mm 的縱向活動球型支座。
LQZ 系列球型支座結構型式及規格系列
LQZ 型雙向活動球型支座

LQZ 型單向活動球型支座

LQZ 型固定球型支座
